www.citify.eu
Išrašo laikas: 2026-04-29 20:54:43
Atnaujinta: 2025-03-20

V. Šiugždinio g. 17

V. Šiugždinio g. 17, Šilainiai, Kaunas

Sublokuoti namai

-

Statytojas

Private person

Sertifikatas

-

Namų informacija

Pardavimai
Neturime duomenų
Kiekis

2

Namų plotai

- m2

Kvadrato kaina

- €

Teritorija

Teritorijos dydis

0.1003 ha

Užstatymo tankumas

26.71 %

Užstatymo intensyvumas

0.3786

Užstatymo plotas

0,00 m2

Želdynų kiekis

25.46 %

Techniniai parametrai

Tūris

Bendras plotas

379,69 m2

Antžeminis plotas

Požeminis plotas

Naudingas plotas

Komercinės patalpos

0 m2

Aukštų skaičius

2

Aukštis

8.5 m

Energetinė klasė

A+

Požeminiai aukštai

0

Transportas

10

1

0

Paskutinis svarstymas

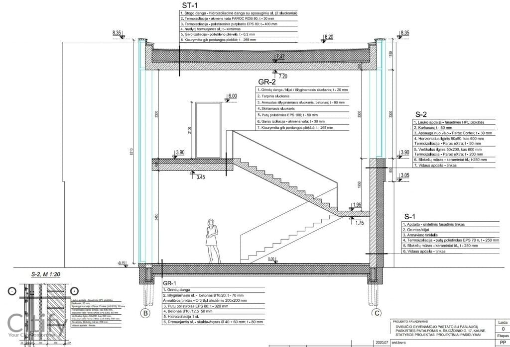
Projektiniai pasiūlymai
Statusas

2020-09-02 16:00
Kauno miesto savivaldybė, Mažoji salė, Laisvės al. 96, Kaunas
Dokumentai
Tai yra visuomenės aptarimui pateikti pasiūlymai ir gali skirtis nuo galutinių savivaldybės patvirtintų sprendinių

Peržiūrėti dokumentą

Informacijos šaltinis

Atidaryti


Susijusios įmonės

Reklama
Metų laikai
Metų laikai
4 etapas jau čia!
Dar 187 butai pirkėjų pamėgtame projekte „Metų laikai“. Prasidėjo paskutinio, 4 etapo pardavimai – išsirinkite geriausią variantą jau dabar.

Vieta   Įterpti

Baigtas Nauja statyba
Pradžia

2020 Q4

Pabaiga

2022 Q2

Etapai
Projekto numeris