www.citify.eu
Išrašo laikas: 2026-05-14 22:19:53
Atnaujinta: 2021-04-21

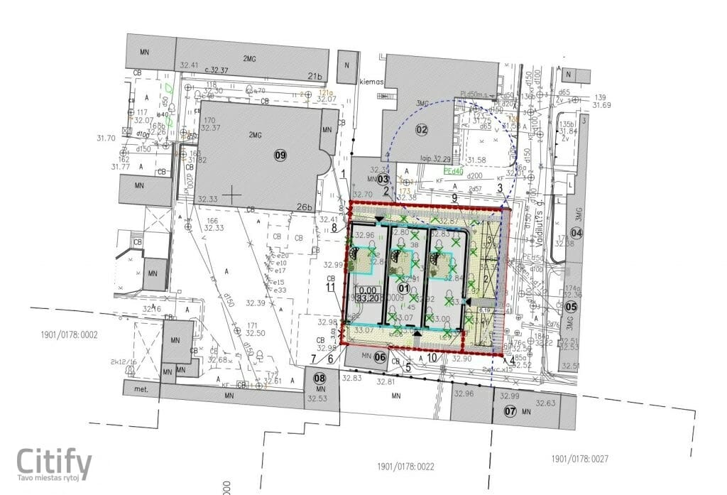
Vaidilutės g. 6

Vaidilutės g. 6, Centras, Kaunas

Daugiabutis

-

Statytojas

Private person

Sertifikatas

-

Butų informacija

Pardavimai
Neturime duomenų
Kiekis

3

Butų plotai

130.62 - 132.30 m2

Kvadrato kaina

- €

Teritorija

Teritorijos dydis

0.0565 ha

Užstatymo tankumas

- %

Užstatymo intensyvumas

Užstatymo plotas

0,00 m2

Želdynų kiekis

%

Techniniai parametrai

Tūris

Bendras plotas

393,92 m2

Antžeminis plotas

Požeminis plotas

Naudingas plotas

Komercinės patalpos

0 m2

Aukštų skaičius

2

Aukštis

8.05 m

Energetinė klasė

-

Požeminiai aukštai

0

Transportas

3

0

0

Paskutinis svarstymas

Projektiniai pasiūlymai
Statusas

2018-05-08 17:00
-
Dokumentai
Tai yra visuomenės aptarimui pateikti pasiūlymai ir gali skirtis nuo galutinių savivaldybės patvirtintų sprendinių

Peržiūrėti dokumentą

Informacijos šaltinis

-


Susijusios įmonės

Reklama
Užupio personos
Užupio personos
Gyvenkite Užupyje
Nuolaidos butams Užupyje iki 27 000 €! Pasinaudokite išskirtiniu pasiūlymu, nes progų apsigyventi pastatytame projekte liko mažiau nei 20.

Vieta   Įterpti

Baigtas Nauja statyba
Pradžia

2018 Q3

Pabaiga

2021 Q2

Etapai
Projekto numeris